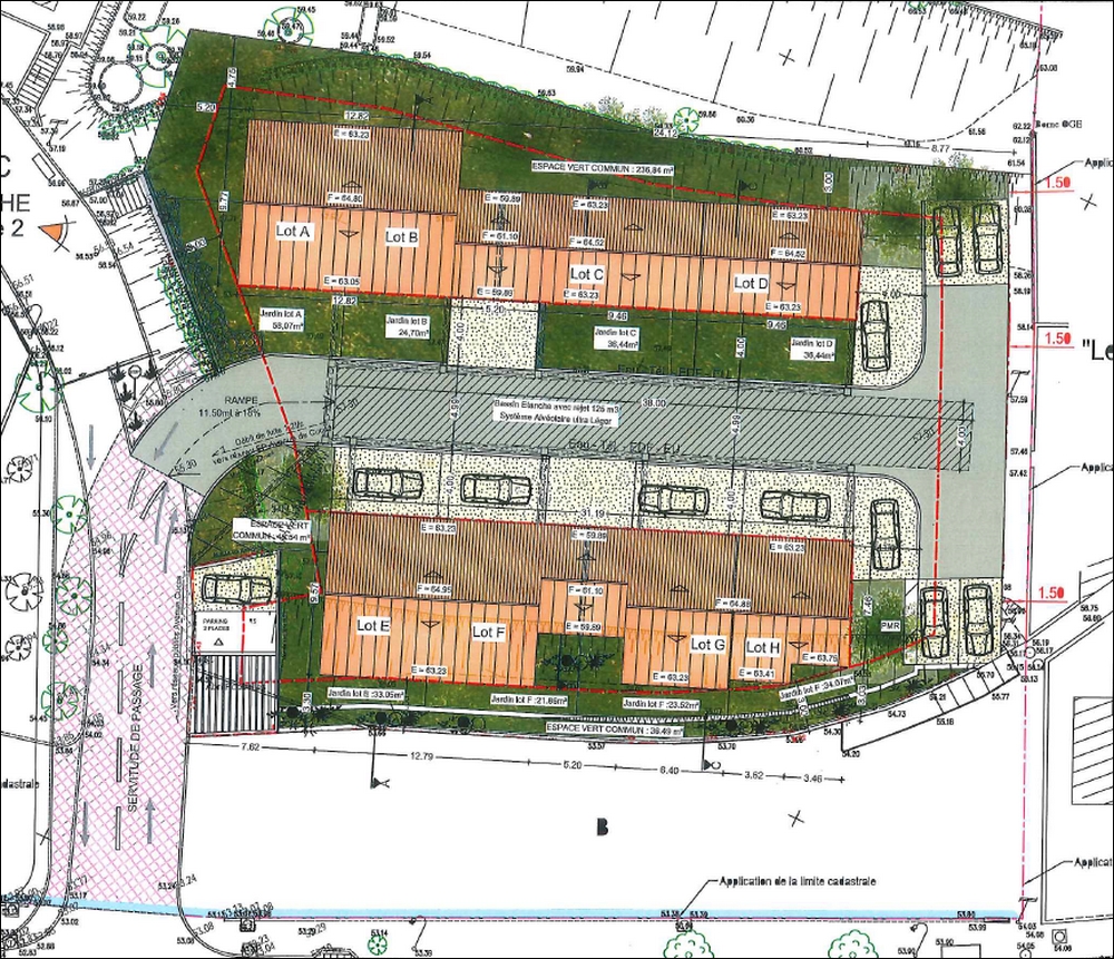
plan-de-masse